CMMN GRND

FITNESS + RETAIL

CMMN GRND gym offers a variety of spin, yoga, barre, Pilates, and Reign classes, set to the beat of Hip Hop, R&B, Deep House, and other current music. CMMN GRND is not your typical gym. With a sense of humour and come as you are attitude, this gym takes a full approach to health for every body (financially, socially, and environmentally). The space will be defined by the creativity and passion of the people in it. Each instructor will be like a performer.

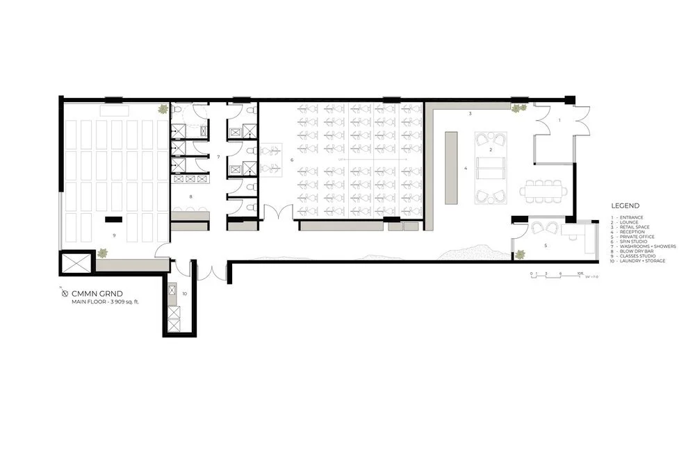
CMMN GRND does not look like your typical gym, either - 3,600 sq ft space transformed into a unique and eclectic environment. Taking cues from hotel lobbies and lounges, with a nod to Mid Century Modern design, use of colour, pattern, and layering of materials creates interest throughout the space. Using a variety of lighting, the space is a chameleon; the front lounge and studios transform for different classes, events, and workshops. Seating in the lounge area and a long communal table with USB plug in stations is a comfortable and inviting place where people hang out before and after classes to be a part of the CMMN GRND community.

Areas in the gym will include the entry, reception, lounge and semi-private space for consults (closed off during consults and part of the lounge when not being used), staff room with a private office, hallway to studios and changerooms, changerooms (men’s, women’s, unisex), spin studio, classes studio, office, laundry, and storage.